$49.99

1200 sf ADU/ Tiny Home Plan Set

I want this!

1200 sf ADU/ Tiny Home Plan Set

$49.99

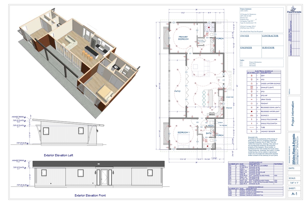
1200sf Tiny Home plan set with elevations and electric layout. This layout is the largest floor plan offered. Anything larger would not really fit the definition of a tiny home. This is a very open floor plan with a sloped ceiling throughout from front to back. The Living Room, Kitchen and Dinning area is central and wide open. The kitchen features a medium island with plenty of cabinet space. Full height glass doors define the rear wall looking out over a large covered patio. The water heater is tankless. The HVAC is a central-split system with the air handler located in its own mechanical closet. Both bedrooms are similarly sized. The Primary bedroom is just off the Living Room and features its own Bath and walk-in closet. The guest bedroom is near the kitchen and the common bathroom. Both bedrooms have large glass sliding doors to the large covered patio.

I want this!

You'll get a 24 x 36 standard plan sheet PDF file with Floor Plan, Electrical Layout and schedule, Elevations, Door & Window Schedule

Powered by